U gebruikt een verouderde internetbrowser.
We raden u aan om de meest recente internetbrowser te installeren voor de beste weergave van deze website.
Een internetbrowser die up to date is, staat ook garant voor veilig surfen.

Kerkstraat 20 , 9550 Herzele
Vraagprijs: € 299 500

Omschrijving

TOPPER !!! aan de Burcht van HERZELE !

Mits wat liefde kan dit een KARAKTERVOLLE & vooral LICHTRIJKE gezinswoning worden met een UNIEKE LIGGING CENTRUM HERZELE aan de Burcht en alle nodige faciliteiten op wandelafstand! Het gelijkvloers omvat +/- 93m² aan leefruimte en eveneens nog bijkomende stockage, een afzonderlijke toilet en een technische berging.
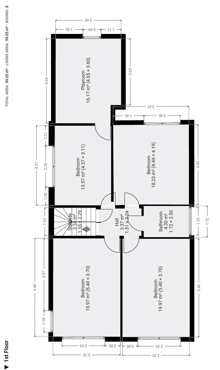
1e verdieping: 4 RUIME KAMERS en een badkamer met toilet.
VASTE TRAP naar zolder dus uitbreidingsmogelijkheden gezien de mooie nokhoogte! De tuin beschikt over een aangelegd terras en is verder zeer onderhoudsvriendelijk aangelegd. Als pluspunt : TUIN TOEGANKELIJK VIA ACHTERLIGGENDE STRAAT.

Dit pand kan onderhevig zijn aan de renovatieverplichting die door de Vlaamse overheid wordt opgelegd voor (niet-) residentiële gebouwen. Consulteer voor meer informatie de website van het Vlaams Energie- en Klimaatagentschap via https://www.vlaanderen.be/bouwen-wonen-en-energie/bouwen-en-verbouwen/renovatieverplichting-voor-nieuwe-eigenaars

Op JUNOvastgoed.be kan u meer informatie vinden en bijkomende documenten downloaden!


Kenmerken

Algemeen

Adres:Kerkstraat 20
Herzele
Referentie:KERK0020
Vraagprijs:€ 299.500
Type:Woning
Beschikbaar vanaf:Bij akte
Ligging:In centrum, Stad centrum, Residentieel, Gemeente
Perceeloppervlakte:503 m²
Perceelbreedte:8,1 m
Perceeldiepte:62 m
Bebouwde opp.:112 m²
Bewoonbare opp.:294 m²
Type constructie:Traditioneel
Bouwjaar:1955
Renovatiejaar:2013
Gevelbreedte:8,1 m
Bouwlagen:4
Algemene staat:Normaal

Indeling

Slaapkamers:5 (20 m², 20 m², 18 m², 13 m², 16 m²)
Badkamers:1
WC:2
Woonkamer:58 m²
Keuken:13 m²
Berging:7 m²
Zolder:82 m²
Kelder:Ja
Terras:Ja
Wasplaats:7 m²
Tuin:390 m²
Tuin breedte:8,1 m
Tuin diepte:48 m
Tuin oriëntatie:Oost
Tuin kwaliteit:Normaal
Parking Types:Gratis

Comfort

Snelweg:Ja - op 4000 m tot 5000 m
Treinstation:Ja - op 500 m tot 1000 m
Bushalte:Ja - op minder dan 500 m
Winkel:Ja - op minder dan 500 m
School:Ja - op minder dan 500 m
Kinderopvang:Ja - op minder dan 500 m
Bank:Ja - op minder dan 500 m
Ontspanning:Ja - op minder dan 500 m
Restaurant:Ja - op minder dan 500 m
Raamwerk:PVC, Hout - aantal met rolluiken
Dak:Zadeldak
Dakbedekking:Dakpannen
Gevel:Baksteen
Fundering:Kelder - Deels kelder
Beglazing:Enkel, Hoogrendementsglas
Elektriciteit:niet-conform
Verwarming:CV-ketel, Condensatieketel, Combiketel, Aardgas - 2023
Verwarmd water:Condensatieketel, Gas, Combiketel
Rolluiken:Ja - Deels
Kabel:Ja
Rookdetector:Ja

Kadastrale gegevens

Niet geïndexeerd K.I.:€ 1.085
Kadastrale benaming:Herzele, 1ste afdeling, sectie A
Kadastrale Nummers:906/S P0000
Kadastrale Oppervlakte:503 m²

Informatieplicht

EPC Certificaat Nr.:20250402-0003568333-KNR-1
EPC Index:470,00 kWh/(m² jaar)
Energielabel:E
Renovatieplicht:Ja
EPC Geldig tot:2/04/2035
Stedenbouwkundige vergunning:Ja
Voorkooprecht:Neen
Verkavelingsvergunning van toepassing:Neen
Stedenbouwkundige bestemming:Andere
Deels woongebied - deels gebied voor gemeenschapsvoorzieningen en openbaar nut
Dagvaarding en herstelvordering:Geen rechterlijke herstelmaatregel of bestuurlijke maatregel opgelegd
Overstromingsgevoelig:Geen overstromingsgevoelig gebied
Overstromingsgebied:Geen afgebakende zones
Overstromingskans perceel (P-score):C
Overstromingskans gebouw (G-score):C
Erfgoed:Geen beschermd erfgoed
Deze eigendom kan onderhevig zijn aan de renovatieverplichting die door de Vlaamse overheid wordt opgelegd voor residentiële gebouwen. Consulteer voor meer informatie de website van het Vlaams Energie- en Klimaatagentschap via https://www.vlaanderen.be/een-woning-kopen/renovatieverplichting-voor-residentiele-gebouwen

Neem vrijblijvend contact op

Wenst u meer informatie of het pand te bezoeken? Contacteer ons vrijblijvend voor meer informatie. 
Wanneer wij uw aanvraag hebben ontvangen zullen wij verder contact met u opnemen. 


U moet akkoord gaan met het privacybeleid van deze website
* Verplicht in te vullen
Niet gevonden wat u zocht? Schrijf u dan in op onze nieuwsbrief en blijf op de hoogte van ons recentste aanbod.
Schrijf u in
Terug naar boven
Sluit menu Juno Vastgoed