U gebruikt een verouderde internetbrowser.
We raden u aan om de meest recente internetbrowser te installeren voor de beste weergave van deze website.
Een internetbrowser die up to date is, staat ook garant voor veilig surfen.

Kerkstraat 20 , 9550 Herzele
Vraagprijs: € 299 500

Omschrijving

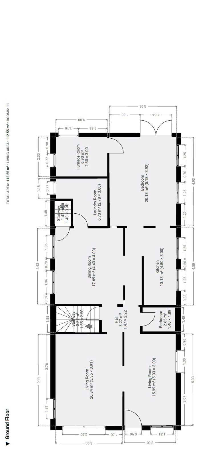
TOPLIGGING Herzele - Ingerichte kinderopvang !

KERKSTRAAT - Herzele RECHTOVER DE BURCHT !
Centraal gelegen nabij alle faciliteiten en met zicht op Burcht.
Karaktervol gebouw met tal van mogelijkheden ! Gezellig en volledig afgesloten terras aan de leefruimte beneden en verder nog een aansluitende, totaal onderhoudsvriendelijke tuin! TOEGANKELIJK VANUIT DE ACHTERGELEGEN STRAAT !
VELE RAMEN = veel lichtinval !
GROTE VERDIEPING met 5 kamers en 1 badkamer. VASTE TRAP naar zolder = UITBREIDINGSMOGELIJKHEDEN.

Dit pand kan onderhevig zijn aan de renovatieverplichting die door de Vlaamse overheid wordt opgelegd voor (niet-) residentiële gebouwen. Consulteer voor meer informatie de website van het Vlaams Energie- en Klimaatagentschap via https://www.vlaanderen.be/bouwen-wonen-en-energie/bouwen-en-verbouwen/renovatieverplichting-voor-nieuwe-eigenaars


Kenmerken

Algemeen

Adres:Kerkstraat 20
Herzele
Referentie:KERK0020(H)
Vraagprijs:€ 299.500
Type:Winkelruimte
Beschikbaar vanaf:Bij akte
Ligging:Residentieel, Gemeente
Perceeloppervlakte:503 m²
Perceelbreedte:8,1 m
Perceeldiepte:62 m
Type constructie:Traditioneel
Bouwjaar:1955
Renovatiejaar:2013
Algemene staat:Normaal

Indeling

WC:2
Keuken:13 m²
Opslagruimte:14 m²
Kelder:Ja

Comfort

Snelweg:Ja - op 4000 m tot 5000 m
Treinstation:Ja - op 500 m tot 1000 m
Bushalte:Ja - op minder dan 500 m
Winkel:Ja - op minder dan 500 m
School:Ja - op minder dan 500 m
Kinderopvang:Ja - op minder dan 500 m
Bank:Ja - op minder dan 500 m
(Stads)centrum:Ja - op minder dan 500 m
Ontspanning:Ja - op minder dan 500 m
Restaurant:Ja - op minder dan 500 m
Raamwerk:PVC, Hout - aantal met rolluiken
Dak:Zadeldak
Dakbedekking:Dakpannen
Gevel:Baksteen
Fundering:Kelder - Deels kelder
Beglazing:Enkel, Hoogrendementsglas
Elektriciteit:niet-conform
Verwarming:CV-ketel, Condensatieketel, Combiketel, Aardgas
Verwarmd water:Condensatieketel, Gas, Combiketel - 2023
Internet:Ja
Rolluiken:Ja - deels
Rookdetector:Ja

Kadastrale gegevens

Niet geïndexeerd K.I.:€ 1.085
Kadastrale benaming:Herzele, 1ste afdeling, sectie A
Kadastrale Nummers:906/S P0000
Kadastrale Oppervlakte:503 m²

Informatieplicht

EPC Certificaat Nr.:20250402-0003568333-KNR-1
Energielabel:E
EPC Geldig tot:2/04/2035
Stedenbouwkundige vergunning:Ja
Voorkooprecht:Neen
Verkavelingsvergunning van toepassing:Neen
Stedenbouwkundige bestemming:Andere
Deels woongebied - deels gebied voor gemeenschapsvoorziening en openbaar nut
Dagvaarding en herstelvordering:Geen rechterlijke herstelmaatregel of bestuurlijke maatregel opgelegd
Overstromingsgevoelig:Geen overstromingsgevoelig gebied
Overstromingsgebied:Geen afgebakende zones
Overstromingskans perceel (P-score):C
Overstromingskans gebouw (G-score):C
Erfgoed:Geen beschermd erfgoed
Deze eigendom kan onderhevig zijn aan de renovatieverplichting die door de Vlaamse overheid wordt opgelegd voor residentiële gebouwen. Consulteer voor meer informatie de website van het Vlaams Energie- en Klimaatagentschap via https://www.vlaanderen.be/een-woning-kopen/renovatieverplichting-voor-residentiele-gebouwen

Neem vrijblijvend contact op

Wenst u meer informatie of het pand te bezoeken? Contacteer ons vrijblijvend voor meer informatie. 
Wanneer wij uw aanvraag hebben ontvangen zullen wij verder contact met u opnemen. 


U moet akkoord gaan met het privacybeleid van deze website
* Verplicht in te vullen
Niet gevonden wat u zocht? Schrijf u dan in op onze nieuwsbrief en blijf op de hoogte van ons recentste aanbod.
Schrijf u in
Terug naar boven
Sluit menu Juno Vastgoed