U gebruikt een verouderde internetbrowser.
We raden u aan om de meest recente internetbrowser te installeren voor de beste weergave van deze website.
Een internetbrowser die up to date is, staat ook garant voor veilig surfen.

Zuidstraat 1 / 4, 9620 Zottegem
Vraagprijs: € 315 000

Omschrijving

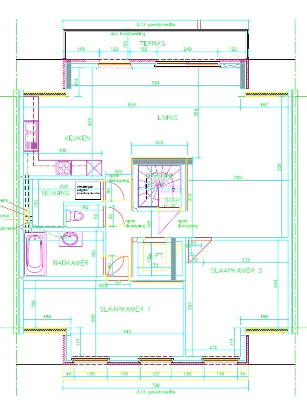
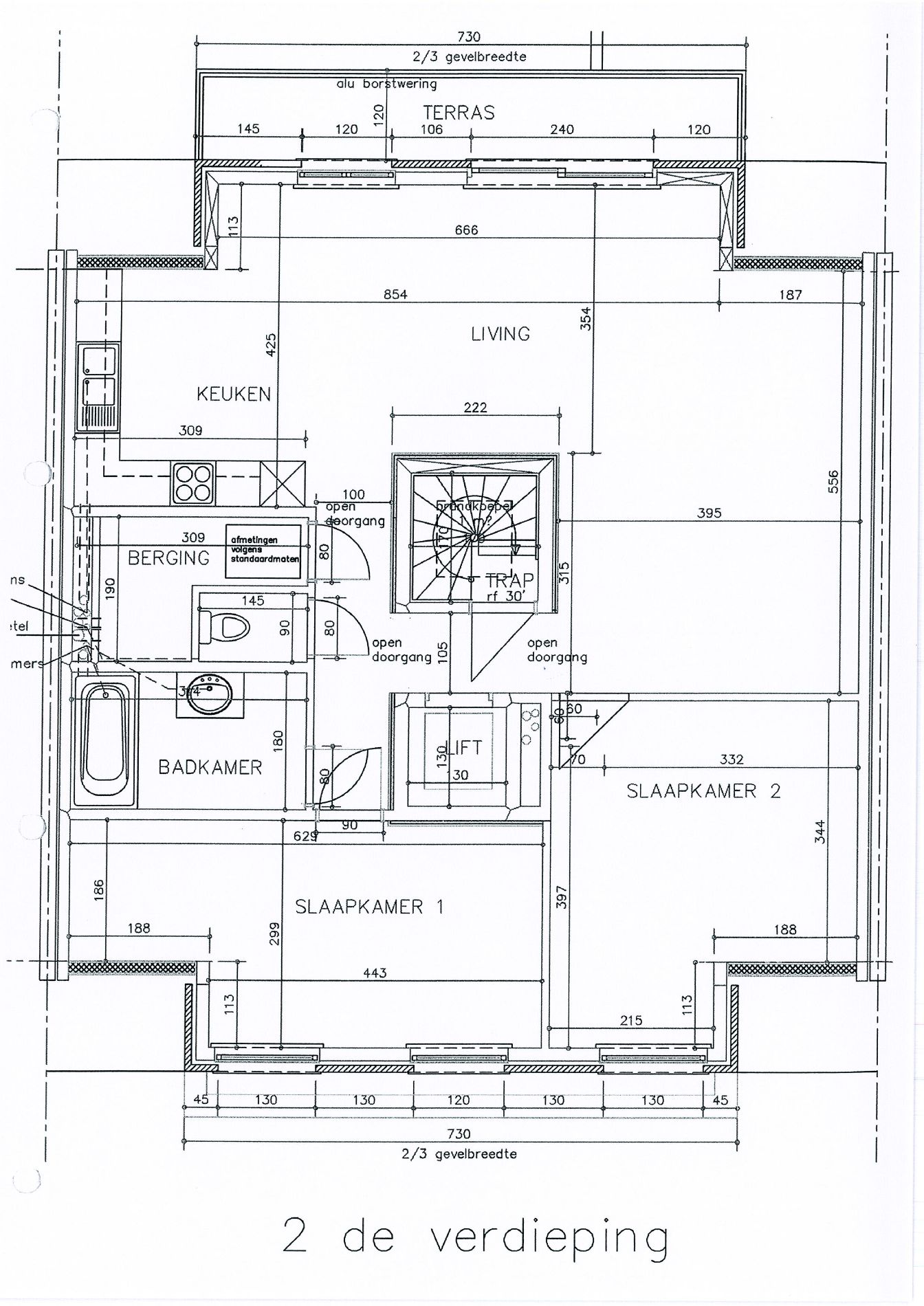
TOPLIGGING ! Instapklaar 2-kamerappartement

KLEINSCHALIGE residentie van 4 appartementen gebouwd in 2006. 122m² groot op de BOVENSTE VERDIEPING met LIFT. Zeer ruime leefruimte, met open keuken (alle toestellen). Zuidgericht balkon. 2 GROTE slaapkamers met dressinghoek, badkamer met ligbad, gastentoilet en proviandberging met stapelzolder. Centrale verwarming is op aardgas. Waterverzachter aanwezig. Wandelafstand station, winkelcentrum, openbaar vervoer, eethuisjes, ...
Mogelijkheid aankoop garage.


Kenmerken

Algemeen

Adres:Zuidstraat 1/4
Zottegem
Referentie:ZUID0001(4)
Vraagprijs:€ 315.000
Type:Penthouse
Ligging:In centrum, Stad, Stad centrum, Residentieel
Bewoonbare opp.:122 m²
Type constructie:Traditioneel
Bouwjaar:2006
Bouwlagen:2
Op verdieping:2
Algemene staat:Instapklaar

Indeling

Slaapkamers:2 (0 m², 0 m²)
Badkamers:1
WC:1
Woonkamer:Ja
Keuken:Ja, Open keuken, Ingericht met toestellen
Berging:Ja
Zolder:Ja
Balkon:9 m²
Terras:9 m²
Tuin oriëntatie:Zuid
Tuin kwaliteit:Normaal
Garage:1
Garage Types:Garage mogelijk
Parking:Ja
Parking Types:Gratis

Comfort

Snelweg:Ja - op 4000 m tot 5000 m
Treinstation:Ja - op 1000 m tot 1500 m
Busknooppunt:Ja - op 1000 m tot 1500 m
Bushalte:Ja - op minder dan 500 m
Winkel:Ja - op 500 m tot 1000 m
School:Ja - op minder dan 500 m
Kinderopvang:Ja - op 500 m tot 1000 m
Bank:Ja - op 500 m tot 1000 m
Ontspanning:Ja - op minder dan 500 m
Restaurant:Ja - op minder dan 500 m
Raamwerk:Draai-/kiepramen, Aluminium
Dak:Zadeldak
Gevel:Baksteen
Fundering:In volle grond
Beglazing:Dubbel, Hoogrendementsglas
Sanitair:Waterontkalker
Elektriciteit:Dubbel tarief
Verwarming:CV-ketel, Aardgas
Verwarmd water:Hoogrendementsketel, Gas
Isolatie:Dakisolatie, Muurisolatie, Vloerisolatie
Lift:Ja - Eigen toegang tot appartement1
Internet:Ja
Mech. ventilatie :Ja
Kabel:Ja
Inbouwarmaturen:Ja
Rookdetector:Ja
Videofoon:Ja

Kadastrale gegevens

Kadastrale benaming:41081 ZOTTEGEM 1 AFD (Zuidstraat 1 )
Kadastrale Nummers:A781 Y4
Opmerking:appartement 2e verdieping, links

Informatieplicht

EPC Certificaat Nr.:20211207-0002505228-RES-1
EPC Index:157,00 kWh/(m² jaar)
EPC Geldig tot:7/12/2031
Elektriciteitskeuring:Ja
OVAM – Bodemattest:Ja
Energie Prestatie Certificaat:Ja
Stedenbouwkundige vergunning:Ja
Voorkooprecht:Neen
Verkavelingsvergunning van toepassing:Neen
Stedenbouwkundige bestemming:Woongebied
Dagvaarding en herstelvordering:Geen rechterlijke herstelmaatregel of bestuurlijke maatregel opgelegd
Overstromingsgevoelig:Geen overstromingsgevoelig gebied
Overstromingsgebied:Geen afgebakende zones
Overstromingskans perceel (P-score):A
Overstromingskans gebouw (G-score):A
Erfgoed:Geen beschermd erfgoed

360°

Neem vrijblijvend contact op

Wenst u meer informatie of het pand te bezoeken? Contacteer ons vrijblijvend voor meer informatie. 
Wanneer wij uw aanvraag hebben ontvangen zullen wij verder contact met u opnemen. 


U moet akkoord gaan met het privacybeleid van deze website
* Verplicht in te vullen
Niet gevonden wat u zocht? Schrijf u dan in op onze nieuwsbrief en blijf op de hoogte van ons recentste aanbod.
Schrijf u in
Terug naar boven
Sluit menu Juno Vastgoed