U gebruikt een verouderde internetbrowser.
We raden u aan om de meest recente internetbrowser te installeren voor de beste weergave van deze website.
Een internetbrowser die up to date is, staat ook garant voor veilig surfen.

Helaas, dit pand is verkocht

9620 Zottegem

Omschrijving

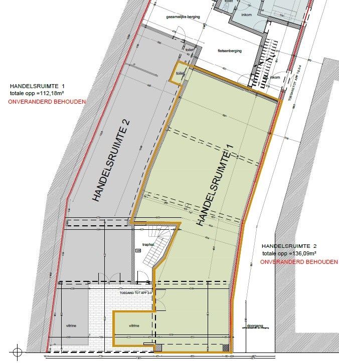
Commerciële winkelruimte 153.00m², energielabel C

In het hart van Zottegem, in de gezelligste winkelstraat HOOGSTRAAT, vindt u deze multifunctionele boutiqueruimte/kantoorruimte met GROTE VITRINE in U vorm +/- 13lopende meter. Het pand werd goed onderhouden en beschikt al over een condenserende gasketel. Mogelijkheid tot aankoop autostaanplaats. Vrij en beschikbaar vanaf notariële akte.
Mogelijkheid tot aankoop AANPALENDE winkelruimte 112m² om zo een GROTE WINKEL van 248,27m² te creëren.


Niet gevonden wat u zocht? Schrijf u dan in op onze nieuwsbrief en blijf op de hoogte van ons recentste aanbod.
Schrijf u in
Terug naar boven
Sluit menu Juno Vastgoed